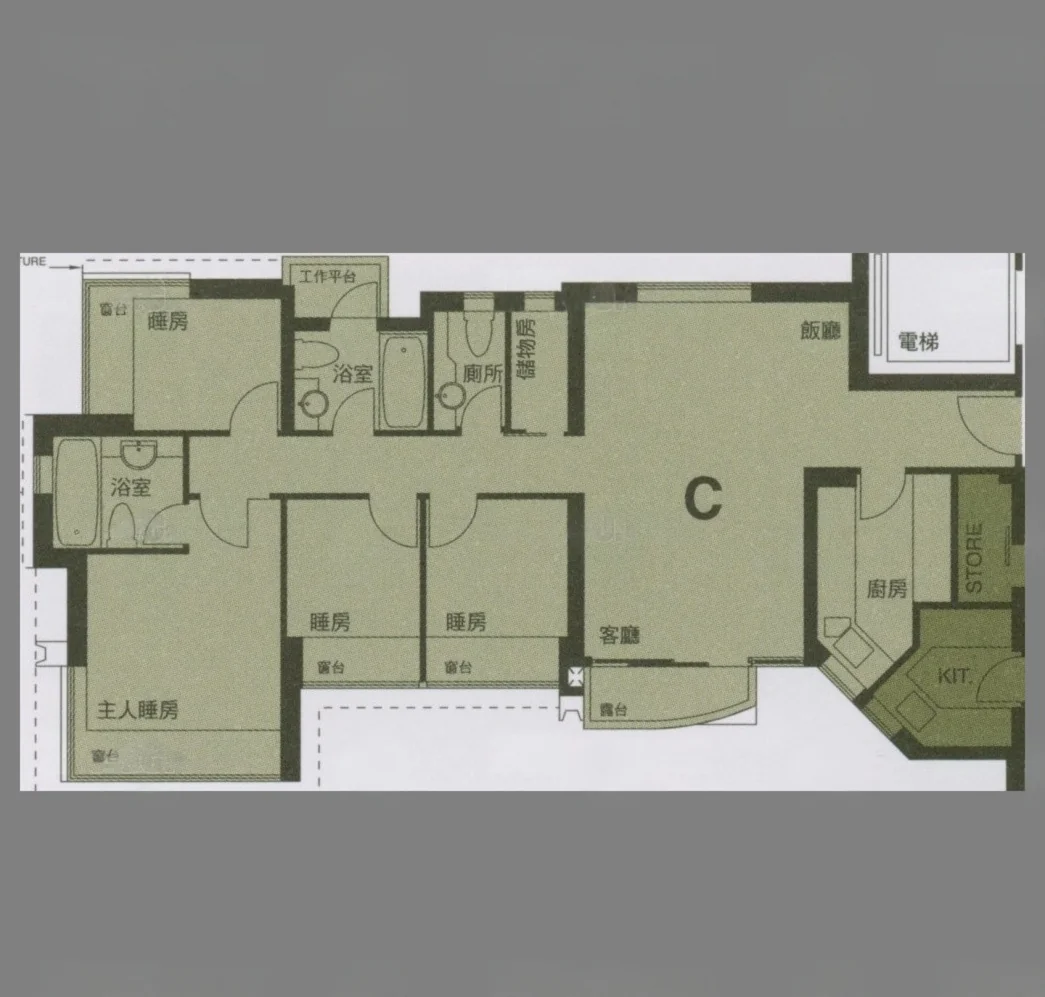
絕對實盤 歡迎比較 (東南)

tip美田路1號

$1,480萬

名城3座中層

私人住宅
樓盤特色