企理靚裝 即買即住 可約睇

tip美田路1號

$1,188萬

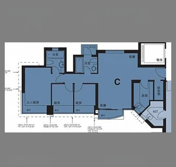
名城3座中層

私人住宅
樓盤特色