買樓
租樓
會員中心
聯絡我們
登入
註冊
登入
註冊
主頁
住宅售盤
新界東
大圍
大圍
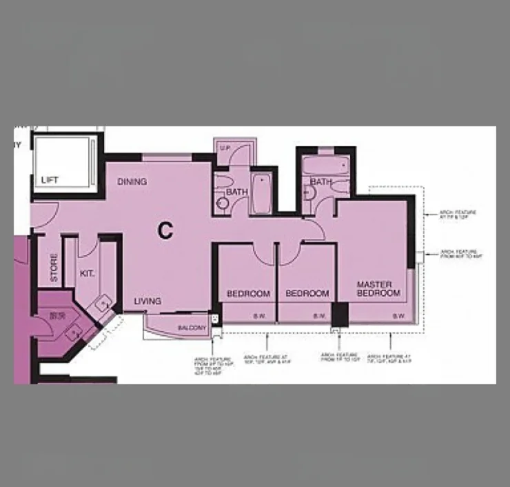
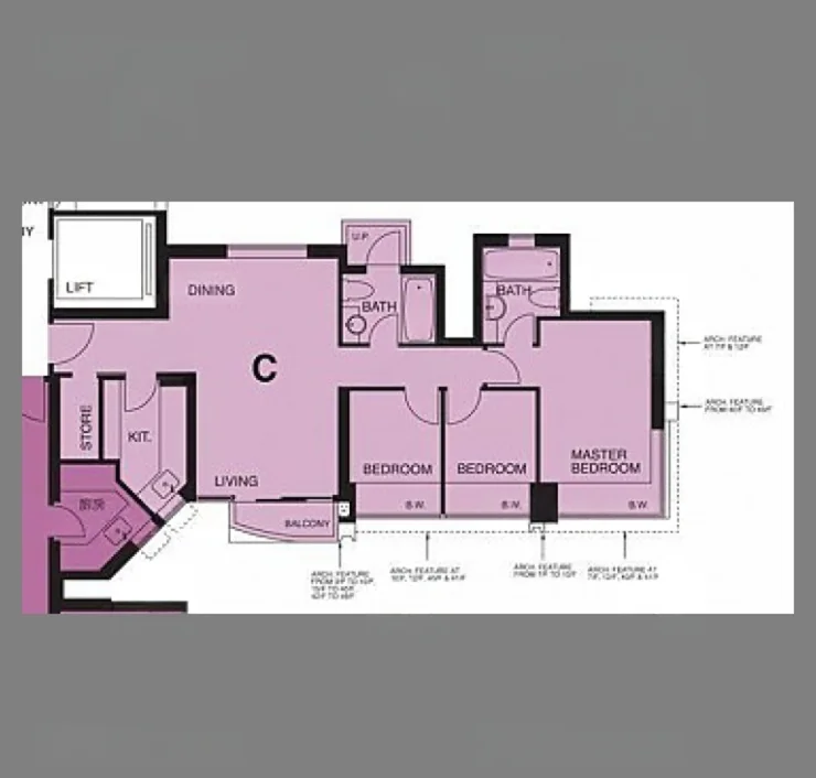
名城
東南
美田路1號
名城
2座
中層
私人住宅
分享
加入收藏
樓盤特色
分享
加入收藏
此樓盤已下架!
不如睇睇同屋苑其他樓盤:
查看更多
Previous slide
Next slide
0/1
預覽