買樓
租樓
會員中心
聯絡我們
登入
註冊
登入
註冊
正在載入內容中...
載入中...
正在載入內容中...
HomeDash家速 - 香港聊天式搵樓平台
實盤約睇,車程數分鐘直達港鐵,大型屋苑設會所 | 歌賦嶺 全幢 售盤 | HomeDash家速 香港聊天式搵樓平台
主頁
住宅售盤
新界東
上水 | 粉嶺 | 古洞
粉嶺
歌賦嶺
私人住宅
歌賦嶺
全幢
實盤約睇,車程數分鐘直達港鐵,大型屋苑設會所
售
$1,800萬
分享
加入收藏
+3
Previous slide
Next slide
0/8
預覽
預覽
預覽
預覽
預覽
預覽
預覽
預覽
家速為你精選
家速生活圈
基本信息
樓盤介紹
屋苑資料
生活配套
常見問題
同屋苑其他樓盤
AI Powered
家速生活圈
編輯我的檔案
古洞南粉錦公路338號
查看更大地圖
由此物業出發至您的上班地區
由於您沒有提供您的上班地區,家速未能為你提供參考資料 😣 您可以
編輯您的檔案
幫助我們為您提供最個人化的參考資料!
基本信息
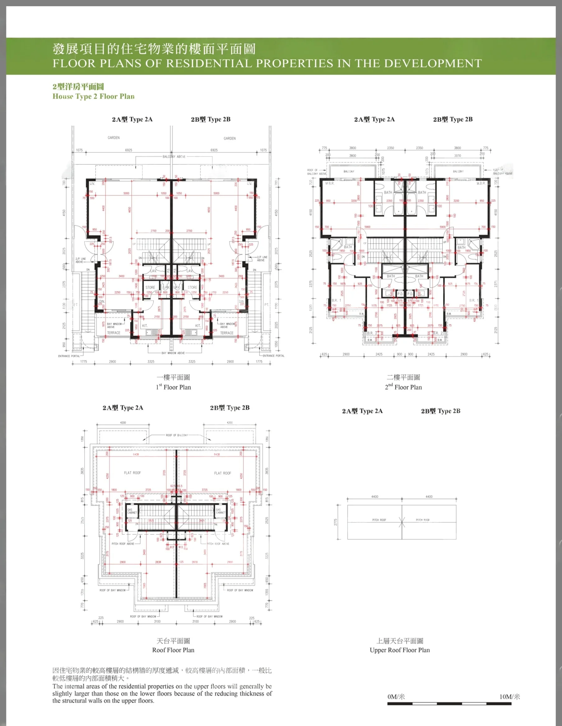
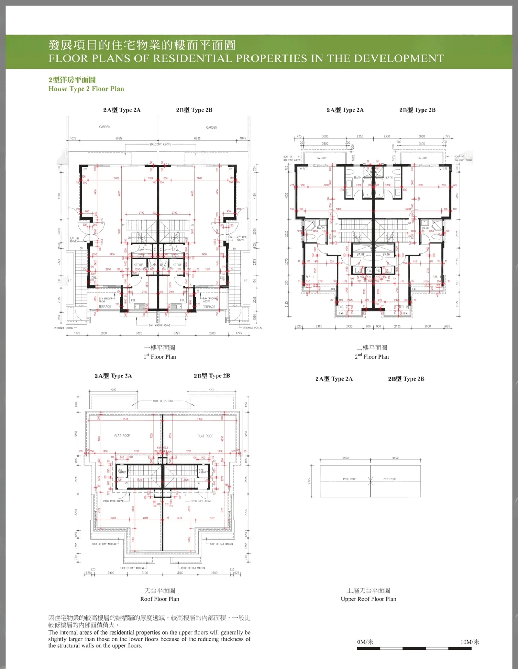
實用面積
798呎
$22556.4/呎
建築面積
-
-
睡房
-
客廳
-
廁所
-
座向
-
景觀
-
特色
-
物業座數
-
樓盤編號
HD37656271
物業編號
U06258
放盤日期
22/10/2025
最後更新日期
24/10/2025
樓盤介紹
Don Lam
晉聯地產有限公司 | S-330368
評分
5.0
平均回覆時間
< 30分鐘
發送訊息
屋苑資料
查看更多
屋苑
歌賦嶺
樓齡
12年
屋苑期數
-
物業座數
253
單位總數
253
發展商
中國海外
其他設施
室外泳池、兒童嬉水池、兒童遊樂場 / 兒童遊戲室、健身室、按摩池、桑拿浴室、蒸氣浴室、網球場、卡拉OK室、燒烤場、音樂室、閱讀室 / 溫習室、舞蹈室、柔道 / 瑜伽練習室、遊樂場 / 遊戲室
校網
小學: 80・中學: 北區
按揭每月供款
首期
$540萬
按揭成數
70%
按揭利率
3%
供款年期
25年
月供
$6萬
*以上價錢只供參考
Don Lam
晉聯地產有限公司
|
S-330368
分享
加入收藏
發送訊息
評分
5.0
平均回覆時間
< 30分鐘
歡迎查詢
發送訊息
生活配套
於地圖上查看
地鐵:上水(4.2 公里)
商場:清河商場(3.2 公里)
醫院:北區醫院(3.3 公里)
社區設施:粉錦公路以東的公園(3.1 公里)
學校:Tung Wah Group of Hospitals Ma Kam Chan Memorial Primary School (Main Campus)(2.8 公里)
您可能有興趣的
租盤一覽
十八鄉
私人住宅
禮修村
1房2廁
售
$318萬
十八鄉
私人住宅
崇正新村
3房2廁
售
$949萬
牛潭尾
私人住宅
加多利園
3房1廳2廁
售
$2,200萬
常見問題
附近還有什麼學校?校網屬哪一區?
該物業的樓齡是多少?
屋苑設有哪些住客設施?例如會所、健身室、泳池等?
日常生活購物方便嗎?附近有沒有超級市場、街市或購物商場?
除了樓價,還有哪些恆常支出?例如管理費、差餉及地租是多少?
更多問題?問吓家速小助手!