買樓
租樓
會員中心
聯絡我們
登入
註冊
登入
註冊
主頁
住宅售盤
九龍
長沙灣 | 深水埗
深水埗
Belgravia Place
星級會所,池,園景雙輝,全新現樓,2房
巴域街1號
售
$596萬
Belgravia Place
1A座
低層
16室
私人住宅
分享
加入收藏
樓盤特色
分享
加入收藏
家速為你精選
家速生活圈
基本信息
樓盤介紹
屋苑資料
生活配套
常見問題
同屋苑其他樓盤
+11
Previous slide
Next slide
0/16
預覽
預覽
預覽
預覽
預覽
預覽
預覽
預覽
預覽
預覽
預覽
預覽
預覽
預覽
預覽
預覽
AI Powered
家速生活圈
編輯我的檔案
巴域街1號
查看更大地圖
由此物業出發至您的上班地區
由於您沒有提供您的上班地區,家速未能為你提供參考資料 😣 您可以
編輯您的檔案
幫助我們為您提供最個人化的參考資料!
基本信息
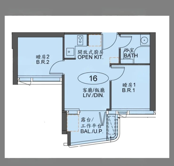
放盤編號:HD37666685;物業編號:3663649
實用面積:333呎,每呎17897.9元
實用面積
333呎
$17897.9/呎
建築面積
-
-
間隔:2房
睡房
2
客廳
-
廁所
-
景觀
-
特色
-
物業座數
1A座
樓盤編號
HD37666685
物業編號
3663649
放盤日期
12/12/2025
最後更新日期
13/12/2025
樓盤介紹
代理:王耀嫌;喜居物業;S-436135
王耀嫌
喜居物業 | S-436135
評分
5.0
平均回覆時間
< 30分鐘
發送訊息
屋苑資料
查看更多
屋苑
Belgravia Place
樓齡
0年
屋苑期數
-
物業座數
2
單位總數
714
發展商
恒基兆業
其他設施
健身室, 多功能室, 燒烤區, 戶外園林
校網
小學: 40・中學: 深水埗區
長沙灣站
7分鐘
按揭計數機
物業價值
HK$
按揭成數
%
按揭利率
%
按揭還款期
年
重設
計算
請輸入資料並點擊「計算」
按揭每月供款
按揭月供參考:$2.6萬
首期
$59.6萬
按揭成數
90%
按揭利率
3.375%
供款年期
25年
月供
$2.6萬
*以上價錢只供參考
王耀嫌
喜居物業
|
S-436135
評分
5.0
平均回覆時間
< 30分鐘
星級會所,池,園景雙輝,全新現樓,2房
發送訊息
分享
加入收藏
發送訊息
生活配套
於地圖上查看
地鐵:石硤尾站(405 米)
商場:華麗購物商場(269 米)
醫院:九龍醫院(2.8 公里)
社區設施:南昌街休憩處(一)(349 米)
學校:聖方濟各英文小學(77 米)
常見問題
附近還有什麼學校?校網屬哪一區?
附近有多所小學和中學,例如中華基督教會協和小學和瑪利諾神父教會學校。該物業屬於小學40校網,中學則屬於深水埗區校網。
附近有多所小學和中學,例如中華基督教會協和小學和瑪利諾神父教會學校。該物業屬於小學40校網,中學則屬於深水埗區校網。
該物業的樓齡是多少?
該物業為全新發展項目,樓齡為0年。這表示Belgravia Place於2025年是剛落成的新樓盤。
屋苑設有哪些住客設施?例如會所、健身室、泳池等?
屋苑設有多項住客設施,包括健身室、多功能室、燒烤區及戶外園林。參考資料中未提及泳池設施。
日常生活購物方便嗎?附近有沒有超級市場、街市或購物商場?
深水埗區的日常生活購物非常方便。附近有多間超級市場、街市如北河街街市,以及西九龍中心等購物商場,能滿足居民的日常所需。
除了樓價,還有哪些恆常支出?例如管理費、差餉及地租是多少?
除了樓價,恆常支出主要包括管理費、差餉及地租。管理費通常按單位面積計算,而差餉和地租則根據物業的應課差餉租值釐定,是業主需定期繳付的費用。
您可能有興趣的
租盤一覽
元朗東南
蝶翠峰 2座 低層蝶翠峰 | 元朗東南售盤
蝶翠峰 2座 低層
蝶翠峰|344呎|2房
售
$608萬
深水埗
望海景,星期會所,地鐵站3分鐘,2房,池海雙輝Belgravia Place | 深水埗售盤
望海景,星期會所,地鐵站3分鐘,2房,池海雙輝
Belgravia Place|311呎|2房
售
$620萬
荃灣市中心
荃錦中心 2座 低層荃錦中心 | 荃灣市中心售盤
荃錦中心 2座 低層
荃錦中心|354呎|2房
售
$510萬