買樓
租樓
會員中心
聯絡我們
地產資訊
登入
註冊
登入
註冊
主頁
住宅租盤
新界西
深井 | 青山公路
掃管笏
香港黃金海岸
【大業主租盤免佣金!】三房套房+工人房!全海景!有匙即睇!
青山公路青山灣段1號
租
$31,700
香港黃金海岸
21座
高層
未知類型
分享
加入收藏
分享
加入收藏
+13
Previous slide
Next slide
0/18
預覽
預覽
預覽
預覽
預覽
預覽
預覽
預覽
預覽
預覽
預覽
預覽
預覽
預覽
預覽
預覽
預覽
預覽
家速為你精選
家速生活圈
基本信息
樓盤介紹
屋苑資料
生活配套
常見問題
同屋苑其他樓盤
AI Powered
家速生活圈
編輯我的檔案
青山公路青山灣段1號
查看更大地圖
正在載入資料...
基本信息
放盤編號:HD37670154;物業編號:3676029
實用面積
-
-
建築面積
-
-
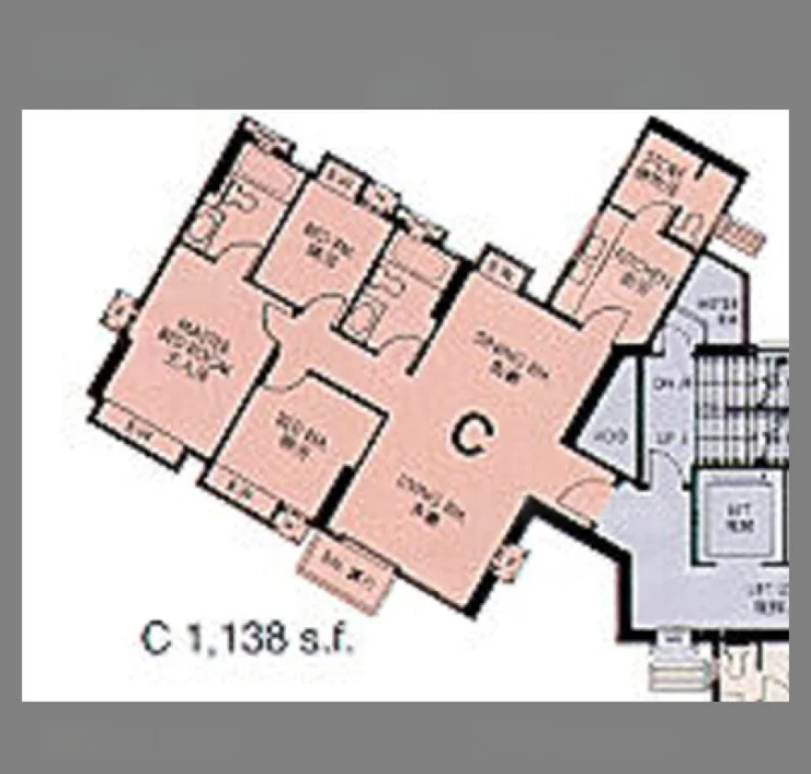
間隔:3房3廁
睡房
3
客廳
-
廁所
3
景觀
-
特色
-
物業座數
21座
樓盤編號
HD37670154
物業編號
3676029
放盤日期
23/12/2025
最後更新日期
23/12/2025
樓盤介紹
屋苑資料
查看更多
屋苑
香港黃金海岸
樓齡
35年
屋苑期數
-
物業座數
30
單位總數
2052
發展商
信置
其他設施
室外泳池、兒童遊樂場 / 兒童遊戲室、健身室、桑拿浴室、蒸氣浴室、乒乓球室、壁球場、網球場、桌球室、保齡球場、高爾夫球練習場、電腦室、緩跑徑、遊樂場 / 遊戲室
校網
小學: 71・中學: 屯門區
租房費用計算
租房費用參考:$11.1萬
按金
$6.3萬
上期租金
$3.2萬
代理佣金
$1.6萬
其他雜費
約 HK$2,000 - $5,000
首次需付總額
$11.1萬
*以上價錢只供參考,實際費用可能因地區和業主要求而異
生活配套
於地圖上查看
地鐵:屯門(4.6 公里)
商場:黃金海岸商場(352 米)
醫院:屯門湖康診所(3.9 公里)
社區設施:青龍花園(1.3 公里)
學校:保良局西區婦女福利會馮李佩瑤小學(873 米)
常見問題
附近還有什麼學校?校網屬哪一區?
香港黃金海岸屬於小學71校網,區內學校包括中華基督教會拔臣小學、仁愛堂劉皇發夫人小學等。中學則屬屯門區,有多間知名中學可供選擇。
香港黃金海岸屬於小學71校網,區內學校包括中華基督教會拔臣小學、仁愛堂劉皇發夫人小學等。中學則屬屯門區,有多間知名中學可供選擇。
該物業的樓齡是多少?
根據資料顯示,香港黃金海岸的樓齡為35年。
屋苑設有哪些住客設施?例如會所、健身室、泳池等?
屋苑提供多元化的住客設施,包括室外泳池、健身室、兒童遊樂場、網球場、高爾夫球練習場等,滿足不同住客的需求。
日常生活購物方便嗎?附近有沒有超級市場、街市或購物商場?
香港黃金海岸設有黃金海岸商場,內有超級市場、多間食肆及商店,日常生活購物十分方便。
除了樓價,還有哪些恆常支出?例如管理費、差餉及地租是多少?
恆常支出包括管理費、差餉及地租。管理費會因單位大小而異,而差餉及地租則按物業的應課差餉租值計算,屬政府徵收的費用。
您可能有興趣的
租盤一覽
三聖
【世紀21-千呎大屋】3房套+工人套 《連2車位可安裝充電》雅德苑 | 三聖售盤
【世紀21-千呎大屋】3房套+工人套 《連2車位可安裝充電》
雅德苑|2148呎|4房3廁
租
$34,000
三聖
【世紀21-千呎大屋】3房套+工人套 《連2車位可安裝充電》雅德苑 | 三聖售盤
【世紀21-千呎大屋】3房套+工人套 《連2車位可安裝充電》
雅德苑|2148呎|4房3廁
租
$34,000
掃管笏
鳳凰樓層全海景《租客免佣特長免租期起租期任傾》【大業主包維修保養】可連充電車位!香港黃金海岸 | 掃管笏售盤
鳳凰樓層全海景《租客免佣特長免租期起租期任傾》【大業主包維修保養】可連充電車位!
香港黃金海岸|1138呎|4房3廁
租
$28,300