買樓
租樓
會員中心
聯絡我們
地產資訊
登入
註冊
登入
註冊
主頁
住宅租盤
新界西
元朗
元朗南新發展
柏巒
柏巒
唐人新村路116號
售
$3,800萬
柏巒
未知類型
分享
加入收藏
分享
加入收藏
家速為你精選
基本信息
樓盤介紹
+6
Previous slide
Next slide
0/11
預覽
預覽
預覽
預覽
預覽
預覽
預覽
預覽
預覽
預覽
預覽
AI Powered
家速生活圈
編輯我的檔案
唐人新村路116號
查看更大地圖
正在載入資料...
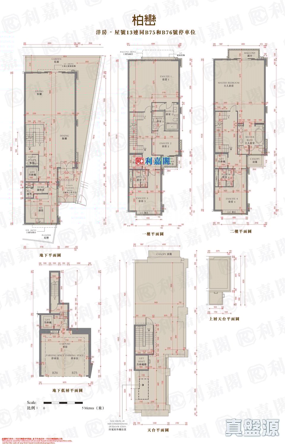
基本信息
放盤編號:HD37658030;物業編號:CO44452717
實用面積:3,852呎,每呎9865.0元
實用面積
3,852呎
$9865.0/呎
建築面積
-
-
間隔:5房
睡房
5
客廳
-
廁所
-
景觀
-
特色
-
物業座數
-
樓盤編號
HD37658030
物業編號
CO44452717
放盤日期
02/12/2025
最後更新日期
22/12/2025
樓盤介紹
代理:Lisa Lau;利嘉閣地產有限公司;S-262183
Lisa Lau
利嘉閣地產有限公司 | S-262183
評分
5.0
平均回覆時間
< 30分鐘
發送訊息
電話聯絡
屋苑資料
查看更多
屋苑
柏巒
樓齡
-
屋苑期數
-
物業座數
-
單位總數
-
發展商
-
其他設施
-
校網
-
按揭計數機
物業價值
HK$
按揭成數
%
按揭利率
%
按揭還款期
年
重設
計算
請輸入資料並點擊「計算」
Lisa Lau
利嘉閣地產有限公司
|
S-262183
分享
加入收藏
電話聯絡
發送訊息
評分
5.0
平均回覆時間
< 30分鐘
💙真盤源💙租樓買樓 一手二手樓宇 專業服務 歡迎查詢
發送訊息
電話聯絡
生活配套
於地圖上查看
暫時無法獲取周邊設施信息
常見問題
附近還有什麼學校?校網屬哪一區?
柏巒小學屬72校網,涵蓋中華基督教青年會小學、伊利沙伯中學舊生會小學等。中學則屬元朗區,包括中華基督教會基元中學、伊利沙伯中學舊生會中學等。
柏巒小學屬72校網,涵蓋中華基督教青年會小學、伊利沙伯中學舊生會小學等。中學則屬元朗區,包括中華基督教會基元中學、伊利沙伯中學舊生會中學等。
該物業的樓齡是多少?
根據資料顯示,柏巒的樓齡為13年。
屋苑設有哪些住客設施?例如會所、健身室、泳池等?
柏巒設有豐富住客設施,包括室內外泳池、健身室、兒童遊樂場、多用途體育館及宴會廳,滿足不同住戶需求。
日常生活購物方便嗎?附近有沒有超級市場、街市或購物商場?
唐人新村路一帶有小型商店及便利店,可應付日常基本所需。若需大型超級市場、街市或購物商場,則需前往鄰近的元朗市中心,交通尚算便利。
除了樓價,還有哪些恆常支出?例如管理費、差餉及地租是多少?
恆常支出主要包括管理費、差餉及地租。管理費會按單位面積計算,而差餉和地租則根據物業的應課差餉租值釐定,並需按季或按年繳交。具體金額需參考個別單位資料。
您可能有興趣的
租盤一覽
大埔豪宅-半山
龍成堡龍成堡 | 大埔豪宅-半山售盤
龍成堡
龍成堡|3618呎|5房2廳
售
$5,900萬
元朗南新發展
柏巒柏巒 | 元朗南新發展售盤
柏巒
柏巒|3493呎|4房
售
$3,800萬