買樓
租樓
會員中心
聯絡我們
屋苑一覽
地產資訊
登入
註冊
登入
註冊
主頁
住宅租盤
新界西
深井 | 青山公路
三聖
雅翠苑
雅翠苑 中層
雅翠苑
中層
私人住宅
青榕街4號
6
2026-03-21
分享
加入收藏
屋苑專頁
租
$32,000
| @$24/呎
1,349呎
實用面積
1,726呎
建築面積
中層
樓層
--
座向
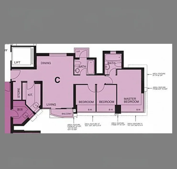
3房 3廁
間隔
1 / 7
相冊 (7)
租
$32,000
| @$24/呎
1,349呎
實用面積
1,726呎
建築面積
中層
樓層
--
座向
3房 3廁
間隔
樓盤介紹
放盤動態
屋苑資料
家速生活圈
常見問題
同屋苑其他樓盤
樓盤介紹
基本信息
樓盤編號:HD37658062
樓盤編號
HD37658062
屋苑或大廈:雅翠苑
屋苑或大廈
雅翠苑
物業編號:CL62317783
物業編號
CL62317783
住宅類型:私人住宅
住宅類型
私人住宅
刊登日期:2025-12-02
刊登日期
2025-12-02
管理費:-
管理費
-
單位特色
物業特色
-
景觀
-
裝修
-
Mei Kwok
利嘉閣地產有限公司
|C-002504
立即致電
線上查詢
【利嘉閣真盤源】三房套+儲物室🚪 實用率高 空間感十足✨ 歡迎致電或WhatsApp本人Mei查詢預約睇樓📱👉😊
放盤動態
近半年價格變動
已有 0 人聯絡過
收藏樓盤 0 人
屋苑資料
雅翠苑的屋苑資料
查看更多
雅翠苑丨三聖·青榕街4號
所在期數:雅翠苑
所在期數:
雅翠苑
屋苑期數:-
屋苑期數:
-
物業座數:-
物業座數:
-
單位總數:-
單位總數:
-
樓齡:-
樓齡:
-
發展商:-
發展商:
-
校網:-
校網:
-
其他設施:-
其他設施:
-
6個月
1年
3年
5年
全部
最新成交
雅翠苑最新成交
暫無買樓成交數據
成交日期
地址
成交價
面積
呎價
升跌
資料來源
暫無買樓成交數據
家速生活圈
雅翠苑 青榕街4號
查看更大地圖
Mei Kwok
利嘉閣地產有限公司
|
S-263518
立即致電
線上查詢
聯絡人
Mei Kwok
利嘉閣地產有限公司
|C-002504
立即致電
線上查詢
租房費用計算
租房費用參考:$11.2萬
按金:$6.4萬
按金
$6.4萬
上期租金:$3.2萬
上期租金
$3.2萬
代理佣金:$1.6萬
代理佣金
$1.6萬
其他雜費:約 HK$2,000 - $5,000
其他雜費
約 HK$2,000 - $5,000
首次需付:$11.2萬
首次需付
$11.2萬
*以上價錢只供參考,實際費用可能因地區和業主要求而異
防騙提醒
見面前不預付任何訂金、費用,慎防網絡詐騙
代理人身份 + 所屬公司,平台 100% 核驗
若遇不實樓盤 / 違規情況:
透過上方投訴表單舉報,我們即刻跟進
致電地產代理監管局(EAA)熱線:2111 2777
平台全程配合 EAA 案件調查
常見問題
雅翠苑的常見問題
附近還有什麼學校?校網屬哪一區?
雅翠苑小學屬71校網,附近有多間小學,例如中華基督教會拔臣小學和青山天主教小學。中學則屬於屯門區校網,選擇豐富,包括中華基督教會何福堂書院等。
雅翠苑小學屬71校網,附近有多間小學,例如中華基督教會拔臣小學和青山天主教小學。中學則屬於屯門區校網,選擇豐富,包括中華基督教會何福堂書院等。
該物業的樓齡是多少?
根據資料,雅翠苑的樓齡為43年。
屋苑設有哪些住客設施?例如會所、健身室、泳池等?
雅翠苑設有兒童遊樂場和停車場供住客使用。資料中未提及會所、健身室或泳池等其他康樂設施。
日常生活購物方便嗎?附近有沒有超級市場、街市或購物商場?
雅翠苑位於三聖區,日常生活購物十分方便。附近有三聖街市、三聖商場,內有超級市場及各式商店,能滿足居民日常所需。
除了樓價,還有哪些恆常支出?例如管理費、差餉及地租是多少?
除了樓價,恆常支出主要包括管理費、差餉及地租。管理費因單位大小而異,而差餉和地租則根據物業的應課差餉租值計算,需定期繳交。具體金額需查詢個別單位資料。
您可能有興趣的
您可能有興趣的
租盤一覽
康樂園
大美督222 中層康樂園 | 康樂園租盤
大美督222 中層
康樂園|1432呎|3房2廳3廁
租
$29,000
|
@20.3/呎租