聯通物業代理有限公司 | E-048661
*以上價錢只供參考
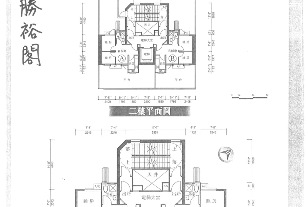
連特大平台:實656.0ft², 土瓜灣 北帝街73號 勝裕閣 實用274呎 原則兩房 附設有特大雙平台656呎 小學校網為34 中學校網為九龍城區 (交通方便四通八達) ️多架過海巴士 約15分鐘到港島 ️多架巴士出油尖旺 ️多架巴士到新界沙田大埔將軍澳 ️不同紅Van綠Van專線 ️行約5分鐘到港鐵土瓜灣站